Pawel1984
Forumowicz-
Postów
85 -
Dołączył
-
Ostatnia wizyta
Typ zawartości
Forum
Wydarzenia
Blogi
Artykuły
Treść opublikowana przez Pawel1984
-
Instalacja CWU z możliwością wyboru źródła
Pawel1984 odpowiedział(a) na Pawel1984 temat w Instalacje CO i CWU
To wiem ale będę miał pewność że na samym zaworze nie stracę za bardzo przepływu. Wiadomo. Przepływowy i rury swoje zrobią ale innymi rzeczami w pierwszym etapie mógł bym się podratować a potem wymieniać sukcesywnie instalacje -
Instalacja CWU z możliwością wyboru źródła
Pawel1984 odpowiedział(a) na Pawel1984 temat w Instalacje CO i CWU
Nie potrzeba szybko. On nie ustawiał by temperatury tylko służył jako zawór przełączający. Jeśli temp w bojlerze jest mniejsza niż ustawia się w pozycję X a jeśli wyższa to w pozycję Y. -
Instalacja CWU z możliwością wyboru źródła
Pawel1984 odpowiedział(a) na Pawel1984 temat w Instalacje CO i CWU
Tak jeszcze myslełem. Czy nie było by lepiej zastosować taki zawór plus siłownik? Tam jest KVS 16 a znajdzie pewnie i takie co będzie więcej bo to pierwszy lepszy jaki znalazłem. -
Instalacja CWU z możliwością wyboru źródła
Pawel1984 odpowiedział(a) na Pawel1984 temat w Instalacje CO i CWU
Rzeczywiście znalazłem 5/4" z KVS 4,8. Tego kupię. Dziękuje bardzo https://allegro.pl/oferta/zawor-mieszajacy-termostatyczny-5-4-gz-20-55-kvs-4-8-vta572-3-dr-esbe-ip400-13395957724 -
Instalacja CWU z możliwością wyboru źródła
Pawel1984 odpowiedział(a) na Pawel1984 temat w Instalacje CO i CWU
Masz może namiar na coś? Ja nie potrafię znaleźć niczego z KVS choć by 4m3. A przepraszam https://allegro.pl/oferta/zawor-mieszajacy-termostatyczny-atm-883-dn25-gz-5-4-35-60-c-kvs-4-2-m3-h-a-7724587431 To największycjaki udało mi się znaleźć -
Instalacja CWU z możliwością wyboru źródła
Pawel1984 odpowiedział(a) na Pawel1984 temat w Instalacje CO i CWU
Tego szczerze akurat ja nie robiłem 😂 Już oglądałem. Ale wiem że będzie trzeba go wymienić na początek. -
Instalacja CWU z możliwością wyboru źródła
Pawel1984 odpowiedział(a) na Pawel1984 temat w Instalacje CO i CWU
ATM 363. KVS tylko 1,6 -
Instalacja CWU z możliwością wyboru źródła
Pawel1984 odpowiedział(a) na Pawel1984 temat w Instalacje CO i CWU
Wiem że afrisochyba ATM ale będę mógł zobaczyć jak będę w domu -
Instalacja CWU z możliwością wyboru źródła
Pawel1984 odpowiedział(a) na Pawel1984 temat w Instalacje CO i CWU
Ogólnie to bardzo dziękuję że poświęcony czas i dyskusje w tym temacie. Ogólnie co zauważyłem. Na pewno dużo większe opory są kiedy woda leci z zasobnika CWU ale myślę że to jest spowodowane zaworem termostatycznym który jest na wyjściu z bojlera. Mam ustawione że ok 40 stopni może iść na instalację. Ale gdy go otworzę na maksymalną temperaturę to jest zdecydowanie lepiej.ten zawór jest DN25. Pomyslałem czy może go nie zastąpić takim samym zaworem dn40 i zrobić to jak instrukcja mówi czyli stosując tzw. pułapkę temperaturowa" i montując go jakaś odległość od bojlera. Ten co mam zamontowany jest zamontowany źle bo praktycznie na wyjściu z bojlera. Jutro przyjdą z PWiK na oględziny co można zrobić w temacie zwiększenie ciśnienia wody. Zobaczymy co z tego będzie. -
Instalacja CWU z możliwością wyboru źródła
Pawel1984 odpowiedział(a) na Pawel1984 temat w Instalacje CO i CWU
To jaka rurę musial bym dać na potrzeby CWU PP40? -
Instalacja CWU z możliwością wyboru źródła
Pawel1984 odpowiedział(a) na Pawel1984 temat w Instalacje CO i CWU
Zwiększyć przekrojów rur nie mogę. Ale czy to serio sens? Jeśli jednocześnie w zasadzie niemal zawsze maksymalnie jedna osoba bierze prysznic. Wydaje mi się że rzeczywiście problemem może być niskie ciśnienie na wejściu do domu z instalacji miejskiej bo tylko 3 bar. Jakie było by rozwiązanie hydrofor (który mam nie używany z wyłącznikiem elektronicznym ciśnieniowym). Czy wiercić w brzuchach tym od PWIK by jednak to ciśnienie było wyższe? Jak myślisz? -
Instalacja CWU z możliwością wyboru źródła
Pawel1984 odpowiedział(a) na Pawel1984 temat w Instalacje CO i CWU
Problem w tym że jedynie 3 bary jest -
Instalacja CWU z możliwością wyboru źródła
Pawel1984 odpowiedział(a) na Pawel1984 temat w Instalacje CO i CWU
-
Instalacja CWU z możliwością wyboru źródła
Pawel1984 odpowiedział(a) na Pawel1984 temat w Instalacje CO i CWU
Można kupić IBO za ok 300zl gdzie kvs to 8m3/h lub za ponad 500 afriso gdzie kvs to 11m3/h. Wody myślę że potrzebuje w okolicach 10l/s więc ten ibo i tak w zupełności by starczył. Ciekawe jaki wpływ na ciśnienie będzie miał taki zawór. -
Instalacja CWU z możliwością wyboru źródła
Pawel1984 odpowiedział(a) na Pawel1984 temat w Instalacje CO i CWU
Serdecznie dziękuję. Kupić DN 32 czy szukać czegoś większego? -
Instalacja CWU z możliwością wyboru źródła
Pawel1984 odpowiedział(a) na Pawel1984 temat w Instalacje CO i CWU
Myślałem jeszcze o dwóch elektrozaworach. Mniejsze opory ale znów 2 rzeczy do sterowania. Kolego @sambor co myślisz o takim zastosowaniu? Czy zawór przełączający DN32 mógł by być ok? Czy może lepiej dwa elektrozawory? -
Instalacja CWU z możliwością wyboru źródła
Pawel1984 odpowiedział(a) na Pawel1984 temat w Instalacje CO i CWU
Program to schema hydraulic na android. Tam w tym nowym kospelu można tak samo łączyć jak w wersji poprzedniej. Dlatego pomyślałem o zastosowaniu zaworu nie DN25 a 32 by skompensować te straty. Ja to już wszystko miałem zrobione i działało idealnie tak jak chciałem. Realizuje to wszystko jak chce i kiedy chce. W zasadzie za bardzo przez moje źle sformułowane pytanie nie pytam czy to będzie działać, czy będzie dobrze. Bo i będzie działać i będzie dobrze. I zawsze tak jak chce. W zasadzie ograniczyć moje pytanie mogę czy zastosowanie takiego zaworu przełączającego w tym miejscu nie spowoduje nadmiernego spadku ciśnienia (dlatego chcę dać DN32)? W sumie to mogę wyjaśnić celowość tego działania. Jest zima nie ma problemu. Kocioł na ekogroszek grzeje wodę. Woda ciepła jest non stop tyle ile chce (nastawa na bojlerze 50 stopni). Zawór przed przepływowym zakręcony a nad przepływowym odkręcony. Woda leci tak jak by go nie było. Lato - normalne lato słońce. Wody pod dostatkiem woda grzeje się ile może więc do ok 70-75 stopni dzięki dwóm grzalkom na dole i na górze zasobnika. Dlatego woda jest zbyt gorąca i musi być zastosowany zawór termostatyczny na wyjściu wody użytkowej z zasobnika w celu schładzana wody. I teraz sytuacja która powoduje że chce mieć to tak jak chce. Lato nie grzeje wody ekogroszkiem. Nie ma słonca - nie ma ciepłej wody. Jeśli bym wiedział że nie będzie produkcji PV przez tydzień to ekogroszek pójdzie w ruch. Ale pojedyncze dni to lepiej korzystać z przepływowego podgrzewacza niż niepotrzebnie grzać za kasę cały zasobnik wody. Ten zawór 3d przełączający ma jedynie zautomatyzować proces z czego woda ma lecieć przez przepływowy z sieci albo z zasobnika. Dodatkowo awaria zasobnika, grzałki itd itd. nie stanowi problem. Przełączam że woda z sieci zasila przepływowy I można przy zasobniku robić na spokojnie. -
Instalacja CWU z możliwością wyboru źródła
Pawel1984 odpowiedział(a) na Pawel1984 temat w Instalacje CO i CWU
To pudełko to kocioł na ekogroszek. Grzałki są w bojlerze I grzeją wodę użytkową. -
Instalacja CWU z możliwością wyboru źródła
Pawel1984 odpowiedział(a) na Pawel1984 temat w Instalacje CO i CWU
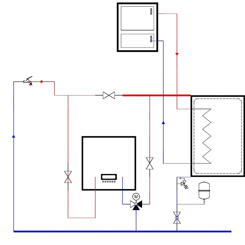
Ale nigdzie nie pisałem że chce grzać wodę użytkową przez wężownicę. Dobra Przepraszam szanownych kolegów. Zbyt uprosciłem schemat. W programie niczego lepszego nie znalazłem i zastosowałem taki rysunek który ma sugerować że to zasobnik cwu. Woda oczywiście użytkowa jest ze zbiornika. Nie z wężownicy. Poprawiłem schemat. -
Instalacja CWU z możliwością wyboru źródła
Pawel1984 odpowiedział(a) na Pawel1984 temat w Instalacje CO i CWU
-
Instalacja CWU z możliwością wyboru źródła
Pawel1984 odpowiedział(a) na Pawel1984 temat w Instalacje CO i CWU
Nie zawór termostatyczny jest za zasobnikiem CWU na długo przed przepływowym podgrzewaczem. W zasobniku często mam wody ponad 70 stopni a to za dużo i do mycia rąk i dla samego przepływowego podgrzewacza (max 60 stopni) Przecież to jest przepływowy podgrzewacz 18 albo nawet 21 kW. Wode na wyjściu ustawiasz jaką chcesz 60 to jest 60 więc prysznic, wanna wszytko bez problemu działa. -
Instalacja CWU z możliwością wyboru źródła
Pawel1984 odpowiedział(a) na Pawel1984 temat w Instalacje CO i CWU
Zasobnik cwu 300l z podwójną wężownicą. Z dwoma grzałkami 3kW i 2 kW. Przepływowy podgrzewacz Kospel PPE 4.M wersja jak się nie mylę 15,18,21kW. Zawór przełączający np. iBO DN 32 myślę że by był ok. Rura główna od zasobnika do kranu PEX 26. Ogólna zasada raczej jest sprawdzona i to działa. Głównie mi chodzi o opinie dotyczące zastosowania w tym konkretnym przypadku zaworu przełączającego. Można to zrobić dwoma zaworami ale tutaj akurat zależy mi na zautomatyzowaniu tego. By móc zintegrować to z HA i z poziomu telefonu bądź automatyki wybierać konkretne źródło. Woda z sieci (z pominięciem zasobnika) bądź woda z zasobnika. Teoretycznie zawsze lepiej z zasobnika bo woda wstępnie jest podgrzana choć by do temperatury pomieszczenia ale zauważyłem znaczny spadek ciśnienia za zaworem termostatycznym co w połączeniu z przepływowym podgrzewaczem wody powoduje słabe ciśnienie na 1 piętrze. Dlatego taki zawór przełączający myślę że był by ok. Teraz tylko kwestia czy on się do tego nadaje bądź może coś innego, lepszego zastosować? -
Instalacja CWU z możliwością wyboru źródła
Pawel1984 odpowiedział(a) na Pawel1984 temat w Instalacje CO i CWU
Można. A co jak się np. zepsuje bojler, grzałka? Tym sposobem jedno przełączenie i ciepła woda jest a naprawić na spokojnie można. Taki układ też f Daje możliwość bardzo szybkiego przełączenia w zależności od potrzeby. Po prostu korzystasz jak chcesz i kiedy chcesz. -
Instalacja CWU z możliwością wyboru źródła
Pawel1984 odpowiedział(a) na Pawel1984 temat w Instalacje CO i CWU
-
Witam serdecznie. Czy ktoś z Was ma tak lub podobnie zrobiona instalacje CWU. Zasada ma być taka. Lato gdzie jest non stop ciepła woda za free zawór nad przepływowym podgrzewaczem otwarty woda bezpośrednio z zasobnika cwu płynie do kranu. W okresie gdzie wody może nie być zawór zamknięty a przed i za przepływowym podgrzewaczem otwarty. Woda płynie przez podgrzewacz do kranu. Przepływowy podgrzewacz wpięty w szereg za zasobnikiem cwu. Trzecia opcja. Awaria, wymiana zasobnika CWU zawór przełączający przełączony na zasilanie podgrzewacza z sieci. Zawór przed podgrzewaczem zakręcony. Można jeszcze dać przed zawór nad podgrzewacz zawór zwrotny. Coś podobnego miałem wcześniej ale teraz chciał bym go zmodernizować zastępując zawory zaworem przełączającym z odpowiednią automatyka. Jeśli temp w bojlerze mniejsza niż X przełącza się podgrzewacz na zasilanie z sieci (większe ciśnienie). Na wyjściu z zasobnika zawór termostatyczny obniżający temperaturę w instalacji.
