k750i
Forumowicz-
Postów
25 -
Dołączył
-
Ostatnia wizyta
Ostatnie wizyty
2140 wyświetleń profilu
Osiągnięcia k750i
-
Wentylacja w sypialni. Grzyb na ścianie.
k750i odpowiedział(a) na k750i temat w Wentylacja i rekuperacja
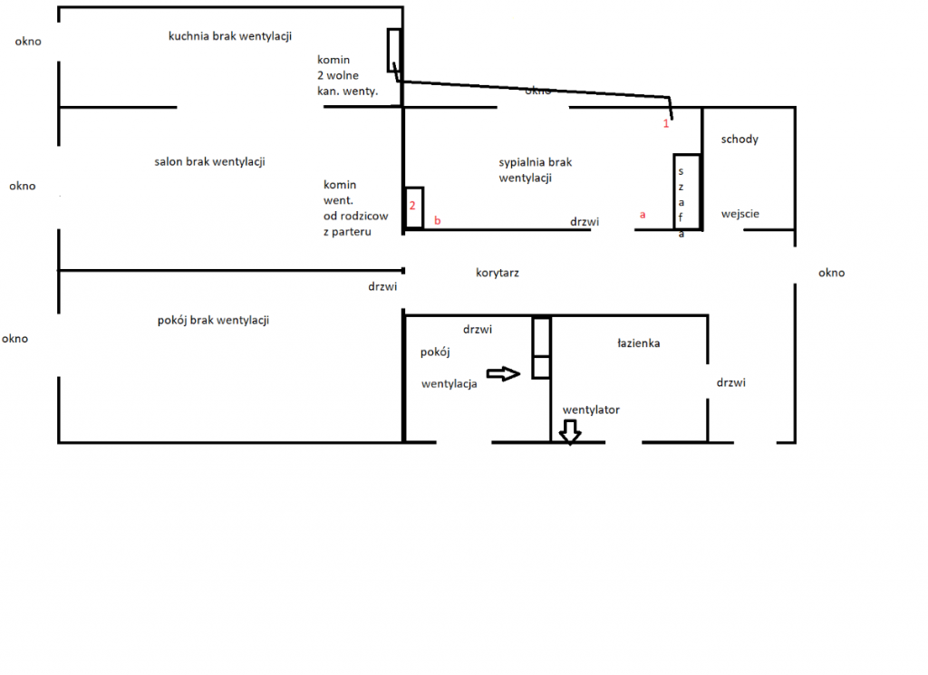
Dodaję rozrysowane całe mieszkanie ponieważ muszę ruszyć z tematem wentylacji bo pierwsze zimne noce i okno w sypialni mokre, po otworzeniu rano okna całe zaparowane. Szafy nie odsunę ponieważ to jest szafa zabudowana z karton gipsu. Znalazłem jeszcze niedocieplony odcinek 1m w rogu u dołu tam gdzie było najbardziej niebieskie- okazało się że nad gankiem wejściowym był sufit obniżony i tam nie było wcale ocieplenia. Kotłownia jest w osobnym pomieszczeniu na parterze do którego wchodzi osobnym wejściem. kol. @Witek-z-Ulicy jak to widzisz. Dać anemostat wywiewny w punkcie 1 i kratkę nawiewną w punkcie a lub b czy wykuć w kominie punkt 2. i wyjąć kawałek uszczelki w oknie ale obawiam się że wtedy może ciągnąć po nogach a w rogu i tak nie będzie dobrej wymiany powietrza- to są tylko moje przypuszczenia nie podparte wiedzą. Chciałbym to zrobić raz a dobrze bez przesadniej demolki sypialni. kol. @mkwapisz a na jaką szerokość była ta piana wpuszczana. wiedząc że problem jest w samym rogu to na boki po ile cm się odsunąć? -
Wentylacja w sypialni. Grzyb na ścianie.
k750i odpowiedział(a) na k750i temat w Wentylacja i rekuperacja
W domu mam piec na ekogroszek i pali się non stop. W zimie w sypialni na noc mamy między 19-20 stopni. Wietrzone przez dzień i zawsze przed spaniem. Rano całe okna mokre i na parapecie woda. Chciałem zacząć od zrobienia porządku w sypialni a w późniejszym czasie w pozostałych pokojach. Tylko zamiast klepać dziury na oślep po ścianach wolałem zapytać. W zeszłym roku jak były mrozy po -20 pożyczyłem od sąsiada telefon z kamerą termowizyjną i załączam te zdjęcia może też coś podpowiedzą. Ogólnie propozycja kol. Witek_Z_Ulicy aby temat rozpatrywać dwutorowo jest trafna bo wydaje mi się że mam dwa problemy. Przemarzanie ściany i brak wentylacji. kol. @mkwapisz czy możesz coś więcej napisać o tym pianowaniu? chodzi mi o to jak szeroko od miejsca przemrażania była wtłaczana. Czy to było 20cm na boki czy może metr? -
Wentylacja w sypialni. Grzyb na ścianie.
k750i odpowiedział(a) na k750i temat w Wentylacja i rekuperacja
Te kominy są wentylacyjne, nie używane nigdy tak więc jeden problem z głowy. w Kuchni jest komin z 2 wolnymi kanałami. naszkicowałem na szybko w pracy, jak bedzie trzeba to zrobie w komputerze. I jeszcze ważne bo z zewnatrz na klatkę i na górze przy wejściu do mieszkania mam drzwiczki małe dla kotów i one nie są jakoś bardzo szczelne- wręcz bym powiedział że przez nie ciągnie jak fix;) i fajnie świeże powietrze wstępnie na klatce się ogrzewa bo tam jest tez grzejnik. SKM_C30821090120510.pdf -
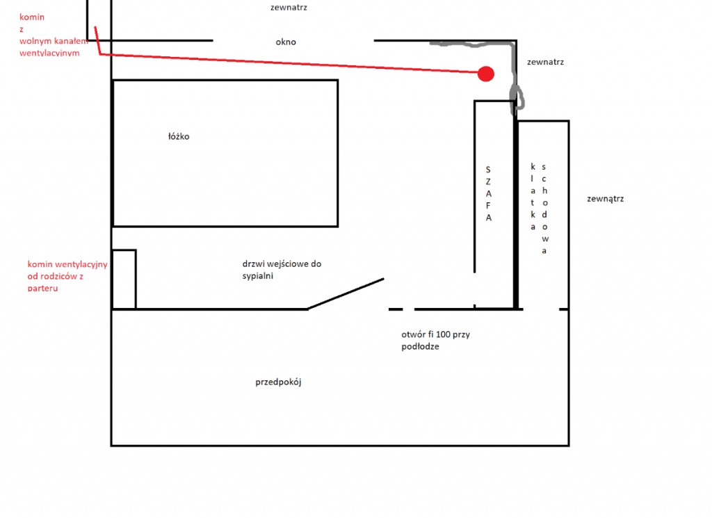
Witajcie. Proszę o podpowiedź w prawidłowym wykonaniu wentylacji grawitacyjnej w sypialni. Na ten moment jest brak jakiejkolwiek wentylacji i było okno zawsze delikatnie uchylone ale w sezonie zimowym jednak w narożniku wykraplała się woda i pojawiał się grzyb. Kolejnego sezony nie ma zamiaru tego znosić. Wymiary sypialni 4,2 x4,5 wys 2,65 = 50m3 . Ściany zbudowane z pustaka z pustką powietrzną 5cm. docieplone białym styropianem 10cm. Od góry nieogrzewany strych użytkowy, na podłodze trociny z wapnem, wylewka i 10cm styropianu. Problem jest z narożnikiem tym który jest od strony klatki schodowej- w rogu u góry po nocy jest normalnie mokro. Wysokość komina ok. 10m ciąg jest bardzo dobry. wg. Rysynku który zamieściłem mam 2 wyjścia- wykuć w kominie który jest juz w sypialni ale znajduje się po przeciwnej stronie problematycznego narożnika i nie wiem czy cokolwiek to da. Drugie rozwiązanie - w rogu tam gdzie jest wilgoć wykuć na strych założyć anemostat wywieny, rurą spiro 100 przejechać pod delikatnym skosem do komina który jest 5m dalej. Z racji tego iż drzwi do sypialni są szczelne i nie chciałem ich podcinać to wykuję otwór fi100 koło drzwi przy podłodze aby tamtędy zasysało powietrze z przedpokoju. Czy tak wykonana wentylacja będzie dobrze działała?
-
Piec rakietowy Piec Rakietowy Co Z Płaszczem Wodnym
k750i odpowiedział(a) na pawellukasz temat w Kominki, kozy i inne piece
znalazłem coś ciekawego piec rakietowy Zastanawiam się czy tego typu konstrukcja wystarczyła by do dogrzewania wody latem w zasobniku 140l gdy słońca jest za mało aby zagrzać wodę z kolektora własnej roboty:) docelowo wykonać RS wg tego poradnika Piec rakietowy wg. multipodwórko -
Tak mam tylko hydrofor i założony jest zawór ciśnieniowy, jedyny problem może stanowić wodomierz który też ma wbudowany zawór zwrotny a tego juz nie obejdę;) czyli jednak naczynie musi być.
-
No właśnie wczoraj specjalnie rozebrałem ten zawór (odkręciłem dekielek, wyjąłem zapadkę, sprawdziłem czy nic nie blokuje i czysto, odkręcałem obieg klapka się podnosi, jak zakręcę to opada-czyli ewidentnie wina zaworu) W przyszłym tyg. będę wymieniał bojler bo mi pęknął i nie mam zamiaru go łatać. Zawór zwrotny założę od razu na wejściu zasilania wężownicy, następnie syfon i przy podłączeniu do instalacji c.o zawór kulowy. Mam jeszcze jedno pytanie odnośnie naczynia przeponowego.Do tej pory nie miałem założonego- tylko zawór bezpieczeństwa. Faktycznie jak się woda nagrzewała w zasobniku to kapało z zaworu ale to mi akurat nie przeszkadzało. Wyczytałem jednak, że jak się nie ma przepony to powstają naprężenia które doprowadzają do pękania emalii a co za tym idzie szybszej awarii bojlera. W domu mam swoją własną studnię, zestaw hydroforowy omnigena jy1000 100l. ciśnienie w instalacji ok. 2 bar. Mam zamiar założyć zbiornik przeponowy 12l ciśnienie wstępne 4 bary. Czy taki będzie odpowiedni? Założyć go chcę na zasilaniu bojlera przed zaworem bezpieczeństwa i zaworem zwrotnym. Czy jeszcze coś pominąłem?
-
Wydaje mi się, że lepiej zrobić syfon. Na rysunku zaznaczyłem 2 możliwości zrobienia syfonu- czy roi różnicę który zastosuje? Powiem szczerze, że wolałbym pierwszy z tego względu, że poprowadziłbym równplegle do powrotu i "ładniej" by to wyglądało. W obu przypadkach mogę zrobić syfon ok. 30cm- czy to wystarczy? Jeżeli zrobię syfon to czy zawór klapowy zostawić czy będzie niepotrzebny? Pozdrawiam
-
Witam! Panowie potrzebuję małej porady odnośnie wychładzania wody w zasobniku Cw. Instalacja jak na rysunku. Zasobnik 150l.jedna pomka do CO. oraz zasobnika. W mieszkaniu 2os. . Po nagrzaniu bojlera powiedzmy przez 2 godziny. Pompka się wyłączy przy 50st. Na czas testów nikt nie pobierał wody. Rano woda w kranie ledwo letnia. Poszukując przyczyny w pierwszej kolejności zamknąłem zawór od cyrkulacji. Niestety nie pomogło. Następnym krokiem było zamiast zaworu zwrotnego klapowego założenie zwykłego zaworu kulowego- strzał w 10. Nagrzałem wodę w bojlerze. Zamknąłem zawór na zasilaniu wężownicy poczekałem aż woda w instalacji c.o. ostygnie i odkręciłem zawór od wężownicy- po chwili rurka gorąca- czyli woda maszeruje grawiatcyjnie z zasobnika do góry do grzejników. Moje pytanie brzmi- czy przez to, że grzejniki znajdują się na piętrze ciśnienie jest tak wysokie że potrafi otworzyć zawór zwrotny i wychłodzić wodę? W jaki sposób najlepiej wyeliminować mój problem? Pozdrawiam
-
Oczywiście zawór zwrotny jest założony w rzeczonym miejscu. Założyłem w pierwszej wersji sprężynowy ale niestety nie było zamierzonego efektu i wymieniłem na klapkowy który jest założony w poziomie. Panowie proszę powiedzcie mi czy to jest dobrze wykonana instalacja c.w.u. i gdzie leży problem w tak długim czasie oczekiwania na ciepłą wodę gdzie wydajność pompki jest 18l/min. ??
-
Witam! Panowie potrzebuje porady przy założeniu pompki c.w.u. Na obrazku mniej więcej zarys sytuacji. Od bojlera do kranu w którym mam pomkę jest jakieś 18m. (po kotłowni 5m, pionowo do góry na strych jakieś 6m, po strychu 5m i do łazienki w dół 2m) Założona pompka to IBO 15/14- ważne parametry to :wydajność 13l/min oraz wysokość podnoszenia 1,1m. która założona jest w miejscu nr. 1 na obrazku. Jeżeli zagrzeję wodę w bojlerze i upuszczę wodę do wiaderka to zdążę napełnić wiaderko ok. 7l zanim otrzymam ciepłą wodę i czas jakieś 2min. Po włączeniu tejże pompki na ok. 5min ciepłą wodę otrzymuje dopiero po ok. 3l odpuszczonej wody. Rozumiem że zimna woda musi się wylać na odcinku tych 2m od miejsca na strychu w którym jest założony trójnik do powrotu mieszanej wody, ale skoro pompka ma wydajność ok. 13l/min to dlaczego dopiero po ok. 5min mam ciepłą wodę jak w trakcie odpuszczania od zera do ciepłej wody bez użycia pompki potrzebuję ok.7lwody. Moje pytania: Czy pompka jest założona w dobrym miejscu? Czy nie lepiej założyć ją na strychu w miejscu trójnika? Czy parametr wysokość podnoszenia jest prawidłowy w moim przypadku czy to jest parametr którym nie powinienem sie przejmowac? Pozdrawiam
