kaczo7
Forumowicz-
Postów
7 -
Dołączył
-
Ostatnia wizyta
Ostatnie wizyty
Blok z ostatnimi odwiedzającymi dany profil jest wyłączony i nie jest wyświetlany użytkownikom.
Osiągnięcia kaczo7
-
Hej, Mam wątpliwość co do której chciałem Was podpytać. Mam układ zamknięty, kocioł gazowy. Otóż przez ostatnie dwa lata miałem problem z instalacją (po dodaniu mieszacza i pompy na podłogówkę) z zapowietrzaniem i stukami z instalacji. W końcu zdecydowałem się z tym zadziałać i zainstalowałem sprzęgło przed mieszaczem na podłogówkę. Wstępne próby wykazują, że wszystkie moje problemy prawdopodobnie znikną. Tym niemniej mam jedno ciekawe zjawisko. Otóż po instalacji sprzęgła musiałem dolać sporo wody do układu, włączyłem dwa razy na pół godziny grzanie całego domu (podłogówka i kaloryfery, pompa na mieszaczu włączona), wszelkie syki przy mieszaczu (następstwo prac serwisowych) ustały, wszystko wygląda ładnie. NATOMIAST zaraz po takim grzaniu spadło mi ciśnienie w układzie aż o 0,5 bara. Dobiłem i z kolei po 2 dniach bez włączania ogrzewania mam spadek o prawie 0,2bar. Mam otwarty odpowietrznik na kotle, tuż za nim nim otwarty separator powietrza, i dalej także odpowietrznik na sprzęgle. Dziś rano usłyszałem syk prawdopodobnie w separatorze pod kotłem (na niepracującym układzie). Ciekawe jest, ze gdy wymieniałem rozdzielacz kilka lat temu to takich jaj nie było (ale wtedy sytuacja była tez inna). Czy może być tak, że powietrze samoczynnie przenosi się w nie pracującym układzie, odpowietrza się i przez to mam spadki ciśnienia i to wszystko się ustabilizuje? Jest to o tyle dziwne, że takich spadków nie było przed dodaniem sprzęgła. Wszystkie miejsca gdzie były wykonywane prace hydrauliczne są natomiast suche, nie wygląda na to by cokolwiek gdziekolwiek w tamtych okolicach było więc nieszczelne.
-
Pytanie o sprzęgło hydrauliczne (zasada działania przy braku zasilania)
kaczo7 opublikował(a) temat w Instalacje CO i CWU
Hej. Mam sytuacje gdzie z kotła dwufunkcyjnego zasilam m.in. podłogówkę. Mam na niej pompę i mieszacz. Pompa sterowana jest niezależnie od kotła a więc pojawić się może sytuacja gdy kocioł grzejąc C.W.U. nie pompuje wody do pompy podłogówki. Uważam wiec, ze powinienem zainstalować z tego i kilku innych powodow sprzęgło przed zestawem mieszającym podłogówki. Moje pytanie jest takie: czy w opisanej sytuacji sprzęgło spełni swoją rolę i pompa podłogówki pompując czynnik po prostu będzie otrzymywać to co sama de facto wypompowuje? Gdzieś w sieci trafiłem na opis, iż wydajność pomp po stronie odbierającej sprzęgła nie powinna być wyższa niż 130% tych po stronie zasilającej (w kotle). W sytuacji gdy kocioł nie zasila w ogóle sprzęgła wychodziłoby na to, że teoretycznie sprzęgło nie nadawałoby się do tego do czego planuję. -
Hej, Mam problem z drobnymi stukami w kilku kaloryferach (instalacja mieszana) ale pomimo instalacji separatora na wyjściu kotła gazowego nie udaje mi się wyeliminować tych bąbelków. Mam wrażenie, że też nie jestem w stanie odpowietrzyć finalnie do końca instalacji. I tu zacząłem się zastanawiać nad zbyt szybkim obiegiem wody w instalacji. W pewnym momencie dodałem niezależnie pompę obiegową i zespół mieszający na podłogówkę - wyłączona pompa oczywiście nie blokuje dopływającego doń czynnika (nie ma przed nią sprzęgła) ale z pewnością ogranicza jego przepływ. To oznacza, że długość instalacji w praktyce zasilanej z kotła po częściowym oddzieleniu podłogówki zmniejszyła się minimum o połowę a pompa pcha nadal podobnie. Kaloryfery stały się głośniejsze itd. Próbowałem podnieść ciśnienie oraz ograniczyć zawory powrotu na kaloryferacg (wyciszyło znacznie instalację) ale problem bąbelków (szczególnie po nocy z mniejszym grzaniem) nie znika. Co ciekawe powietrze nie odkłada się w tych kaloryferach, po prostu wydaje się, że sobie przepływa. Nie jestem specjalistą ale wydaje mi się, że po prostu obieg może być zbyt szybki by powietrze spokojnie mogło się odłożyć w pobliżu odpowietrzników (kaloryfery są naturalnie lekko przechylone) i może również zbyt szybki dla separatora powietrza? Gdy zakręcam separator to powietrze w nim znajduje się (o ile jest) wyłącznie gdy obieg wody się zatrzyma, w trakcie przepływu wody wygląda jakby się tam nie chciało odłożyć albo przynajmniej ujść. Ten sam powód wydaje mi się w połączeniu z szybko zamykającymi się głowicami na kaloryferze (okolica 1-2 sekund na zejście ze 100% otwarcia do 0% mógłby dodatkowo powodować zasysanie powietrza przez odpowietrzniki. Czy myślę dobrze? Czy może też przed zespołem mieszającym na podłogówkę założyć sprzęgło by woda mogła swobodniej przepływać i przyjąć część przepływu z pompy i dodatkowo odseparować od siebie dwie pompy obiegowe (podłogówki i kotła)? Ale nie wiem czy tak się robi. Niestety mój De Dietrich MPX 28/33BIC nie pozwala na ręczną zmianę mocy pompy gdyż jest modulowana. O ile się orientuję to wymaga to połączenia do urządzenia instalatora.
-
Hej, Po jakimś czasie chciałem przesłać aktualizację. Twój pomysł wymiany odpowietrznika na ręczny na powrocie mieszacza podłogówki przyniósł rezultat w postaci zmniejszenia ilości powietrza w układzie. Wygląda na to, że tym odpowietrznikiem (nawet pomimo zakręcenia) dostawało się powietrze przy pracującej pompie (zasysanie). Zauważyłem na ręcznikowcu, że ilość powietrza (odpowietrzane 2x dziennie) zmniejszyła się znacznie ale nadal było ze 2-sek odpowietrzania po nocy. Idąc dalej, usunąłem więc wszystkie odpowietrzniki automatyczne higroskopijne z kaloryferów i zainstalowałem normalne, ręczne. Obserwowałem przez dwa dni sytuację na ręcznikowcu (miał zdjętą głowicę 24h/dobę czyli pełny przepływ) i ilość powietrza spadła do ok 0,5 sek odpowietrzania. Po dwóch dniach założyłem mu spowrotem głowicę. Wygląda na to, że resztki powietrza w układzie z czasem wyeliminował pozostały odpowietrznik (na zasilaniu) podłogówki oraz separator powietrza za kotłem. Pozostaje jeszcze do odkamienienia kocioł ale wygląda na to, że ewentualne powietrze powstające w tym miejscu na ten moment jest z sukcesem eliminowane przez separator. Pierwszy raz od blisko dwóch lat mam ciszę a i sam przepływ wody w kaloryferach dzięki separatorowi jest cichszy. Dziękuję za poradę, spowodowała kaskadę działań które podjąłem i które W KOŃCU dają mi spokój i niższe ciśnienie - nie w kaloryferach lecz w moich żyłach 😉 Miłego!
-
Myślisz o zasysaniu przez ten zawór? Aktualnie jest zamknięty. Przy odkręceniu kiedyś z niego syknęło powietrze wiec wydaje się, że nie powinien zasysać. Natomiast tak czy inaczej przy wylaczonej tej części instalacji provlrm był nadal 😞 To się wytrąciło jak dodałem inhibitor korozji rok temu. A swoją drogą czy sądzisz, że tam powinno być sprzęgło? Czy nie ma większego ryzyka kawitacji pomiedzy pompą w tym mieszaczu a wyjściem CO z kotła? W końcu gdy kocioł jest w trucie grzania CWU to pompa teoretycznie nie ma co z kotła zaciągnąć. Pytanie czy wtedy 100% jej mocy idzie na zassanie z powrotu podłogówki czy jednak jakieś powietrze zasysa się przez separator pod kotłem? Choc nadal cały temat wydaje mi się średnio mieć wspólnego cokolwiek z tym mieszaczem? Zakręcenie tej części nie zmieniało stanu rzeczy.
-
Hej, dziękuję za zainteresowanie tematem! Dodaję zdjęcia: 3 zdjęcia mieszacza z pompą - wybacz, że nie ma jednego w całości ale mam zasłonięte schowkiem zdjęcie separatorów pod kotłem (jest tam pewna akrobacja ze względu na brak miejsca + trytytki dodane przeze mnie ot tak na wszelki wypadek by rury się za bardzo nie ruszały w trakcie odpowietrzania [kiedyś przymocuje je stabilniej], hydraulik twierdził, że to zbędne ale wg mnie nie zaszkodzi) zdjęcie zespołu pompy i odpowietrznika w kotle zdjęcie zasilania podłogówki w łazience na piętrze zdjęcie zaworu (ze zdjętą głowicą) na ręcznikowcu (wydaje się, że zasilanie wchodzi prawym przyłączem - odwrotnie niż w pozostałych kaloryferach NATOMIAST instrukcja tego zaworu tak też stanowi i też prawa rura idzie najwyżej do odpowietrznika ręcznego) - wg mnie odpowiednie rury są zasilaniem dla grzejników (lewa) a dla ręcznikowca prawa - tak jak powinno być wg mojego rozumienia zdjęcie odpowietrznika zastosowanego na grzejnikach (mam identyczne od dwóch różnych producentów ale to nie powinno mieć znaczenia) Wydaje mi się, że nie ma nic alu a przynajmniej wg mojej wiedzy nic z alu nie dodałem 🙂 Miałem wrażenie rok-dwa temu, że w trakcie odpowietrzania czuć było jakiś zapach - aktualnie odpowietrzanie jest bezwonne. PS. Próbowałem także funkcji odpowietrzania na kotle - mam wrażenie, że czasem na chwilę pomaga ALBO przesuwa gdzieś powietrze w układzie, że (czasem) chwilowo jest lepiej. Na ten moment jednak wiele to nie daje. Odpowietrzanie pompy podłogówki działa kilka sekund - najwyraźniej nie jest zapowietrzona (pierwsze włączenie kiedyś było znacznie dłuższe).
-
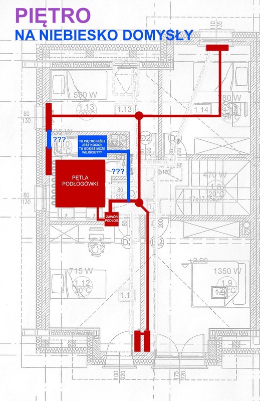
Cześć! Najpierw opiszę instalację, potem co zrobiłem, potem jakie mam problemy i finalnie jak próbowałem je zniwelować. Niestety po półtora roku walki nie mam już wielu pomysłów. Instalatorzy też nie są w stanie mi rzeczowo doradzić. W skrócie: od instalacji mieszacza z pompą na podłogówce mam bulgotające i głośne kaloryfery na piętrze. Moja instalacja: Dom z 2019 roku, ogrzewanie gazowe Cała reszta poniżej to rzeczy do których udało mi się dotrzeć bowiem developer zrobił jak mu się podobało i bez związku ze szczątkowym projektem który udało mi się uzyskać Parter: 4 pętle ogrzewania podłogowego, pętle wychodzą z rozdzielacza (1 wejście, wyjścia na 4 pętle, nie ma żadnego wyjścia z rozdzielacza na piętro), na mieszaczu zawór do ustawiania temperatury oraz pompa Wilo Para + rotamery + dwa odpowietrzniki automatyczne Afriso z mechanizmem Aquastop. NIE MA SPRZĘGŁA Piętro: 5 grzejników (w tym 1 ręcznikowiec i 4 grzejniki panelowe, prawdopodobnie stal) oraz 1 pętla podłogówki w łazience (tej samej gdzie ręcznikowiec), ręcznikowiec nie musi grzać by grzała podłogówka, na podłogówce w łazience (na WEJŚCIU) ustawia się temperaturę zasilania - nie jest to RTL. Oznacza to, że podłogówka w łazience grzeje zawsze gdy którekolwiek pomieszczenie żąda ogrzewania (tylko ograniczona jest to temperaturą) ale to mi nie przeszkadza, to jest łazienka, tam może być trochę cieplej, straty nie będą duże. Na piętrze nie ma rozdzielacza, robiliśmy termowizję i wszystko jest na trójnikach, nie udało się jednak zlokalizować gdzie jest wejście wody CO (aczkolwiek na szkicach które dołączam są jakieś moje domysły) Kocioł gazowy dwufunkcyjny De Dietrich MPX28/33 BIC (to jest bodajże seria Lumea), ciśnienie w układzie w trakcie spoczynku 1,3 bar (instrukcja mówi 1,0-1,5), w trakcie pracy z gorącą wodą CO ok 1,8 bar, naczynie wyrównawcze szczelne i ciśnienie tam także poprawne Z kotła wychodzą rury PP, do kaloryferów dochodzą PEX Wygląda na to, że z kotła gdzieś w jego pobliżu w ścianie jest trójnik na piętro i parter, na piętrze nie udało nam się znaleźć gdzie jest wejście CO z kotła i jak dochodzi woda do ręcznikowca (ale nie jest na pewno połączona z podłogówką). Załączam dwa plany z ręcznie naszkicowanymi instalacjami. Na czerwono pewne rzeczy, na niebiesko moje domysły (na parterze niemal pewne, na piętrze to rzut monetą) Na kaloryferach smart głowice termostatyczne korzystające z systemu Tado ( https://tado.com ) - wybrane ze względu na prostotę oraz możliwość zarządzania grzaniem w zależności od obecności domowników w domu, przyjąłem zasadę, iż pokoje z kaloryferami w trakcie nieobecności oraz w nocy grzeją 1C mniej, podłogówka na parterze stara się utrzymać stałą temperaturę Brak możliwości ustawienia niestety w Tado histerezy ale wg mojej obserwacji gdy ustawię grzanie na 22*C to zaczyna grzać w okolicy 22*C lub 21,9*C aż do ok 22,2*C. Wszystko jednak zależy od pomieszczenia, tego jak szybko ono się nagrzewa, jakie są żądania z innych pomieszczeń, jaka modulacja kotła się szykuje itp itd - system wydaje się adaptować do danych i specyfiki pomieszczeń i modyfikuje sposób ogrzewania w zależności od okoliczności, bierze po uwagę nasłonecznienie, temperaturę itd. Jest to dość sprytne rozwiązanie acz daje mniejsze możliwości kontroli i zmiany ustawień. BRAK zmiękczacza wody (nie mam możliwości niestety) PROBLEMY I ZMIANY W INSTALACJI Ponieważ instalację developer zrobił po prostu źle (m.in. brak rozdzielacza na piętrze, trójniki, cała instalacja zasilana z kotła, na parterze był tylko mieszacz z RTLami) to borykałem się z problemem gdzie każde żądanie grzania na kaloryferach powodowało zasilenie podłogówki na parterze a więc parter był przegrzany. Ponadto cały układ mógł być grzany na max 45*C przez brak ograniczenia temperatury na podłogówce (mieszacz na parterze nie miał niczego poza RTLami, nawet rotamerów) a to powodowało dyskomfort na piętrze (wolę cieplejsze kaloryfery) W związku z tym półtora roku temu wymieniłem mieszacz na zestaw mieszający (pompa wilo para, zawór termostatyczny, rotamery, odpowietrzniki), zawór termostatyczny ustawiony na okolice 40*C, pompa włącza się gdy temperatura na parterze tego wymaga, włączenie pompy aktywuje także kocioł gazowy. Na kotle grzanie CO ustawione na max 50*C (sterownik Tado oblicza sobie samodzielnie jaką temperaturę zasilania do granicy 50*C potrzebuje na bazie ilości żądań przez każdy z pokojów + parter, dodatkowo otwiera głowice na kaloryferach w 33%, 66% lub 100%) - oczywiście wyłączona pompa nie blokuje w 100% dopływu wody z kotła ale ogranicza go na tyle, że gdy nie jest włączona to parter w praktyce się nie grzeje więc osiągnąłem co chciałem. Pompa na mieszaczu podłogówki ustawiona na najniższy bieg, tryb stała różnica ciśnień Od momentu tej zmiany mam już komfort cieplny ale mam też bulgotające kaloryfery - i z tym staram się walczyć. Co to znaczy? Szczególnie po jakimś czasie nie grzania (np. po nocy gdzie grzanie jest zerowe lub niewielkie) niektóre z kaloryferów gdy otwiera się głowica i kocioł zaczyna pompować ciepłą wodę do CO zaczynają lekko stukać. Nie jest to rytmiczne stukanie ale trwa to od kilku do kilkunastu sekund, jakby bardzo małe bąbelki powietrza wytrącały się w różnych odstepach czasu przed głowicą (bo głowica była kilka godzin zakręcona) i w momencie gdy głowica się odkręca i woda rusza to one jakby uderzały wewnątrz grzejnika. Grzejniki jako takie NIE SĄ zapowietrzone, grzeją bardzo dobrze - odkręcenie odpowietrzników powoduje wylewanie się wody (uwaga: nie dotyczy ręcznikowca o czym niżej), podłączone są poprawnie (co ciekawe ręcznikowiec wydaje się mieć odwrotny przyłącz ale wydje się zgodny z zaworem na nim i samym ręcznikowcem, tym niemniej ręcznikowiec szumi dość głośno gdy są odkręcone mniej niż 2 kaloryfery - wliczając ręcznikowca ale inne kaloryfery też w takim wypadku są relatywnie głośne) Kocioł w momencie przełączania się między grzaniem CWU oraz CO lub po włączeniu grzania CO po jakimś czasie głośno bulgota (przelewa się woda) i przez jakiś czas szumi. Obstawiam, iż możliwe, że wymiennik jest zakamieniony przez dużą ilość prac w układzie CO i konieczność dobijania wody. Zauważyłem, że gdy występuje pewne połączenie zdarzeń tzn: głowica grzejnikowca zakręcona, pompa na mieszaczu podłogówki na parterze WŁĄCZONA, kocioł z WYŁĄCZONĄ pompą CO bo w danym momencie grzeje CWU oraz specyficzne ustawienie zaworu termostatycznego (ok 45C) na parterze + podobne na zaworze podłogówki w łazience na piętrze to słychać było na zaworze ręcznikowca rytmiczne stuki pompy podłogówki na parterze. Lekka zmiana ustawień obu zaworów termostatycznych na mieszaczu podłogówki parter oraz na wejściu podłogówki łazienka góra potrafi zniwelować przynajmniej częściowo ten efekt. Gdy kocioł puszcza ciepłą wodę (bo np. przestał grzać CWU) to problem znika natychmiast. CO ZROBIŁEM ŻEBY TO POPRAWIĆ Pomimo tego, że kocioł posiada w pompie odpowietrznik automatyczny (był odkręcony) to doinstalowałem pod kotłem także separator powietrza na wyjściu oraz separator zanieczyszczeń na wejściu - NIE POMOGŁO niezależnie od tego czy którykolwiek z nich jest zakręcony czy oba odkręcone (odkręcając czasem słychać minimalne ujście powietrza z separatora). Na mieszaczu podłogówki są dwa odpowietrzniki, niezależnie czy są odkręcone czy zakręcone - NIE MA RÓŻNICY, odkręcając zawór raz na miesiąc może jest tam jakiś minimalny syk powietrza ale pomijalny Miałem kilku instalatorów: odpowietrzaliśmy podłogówkę (choć grzeje i grzała cała) oraz odpowietrzaliśmy kaloryfery (w tym przez powrót) - NIE POMOGŁO Na ręcznikowcu (bo jest najwyżej) zamontowałem na 2 tygodnie odpowietrznik automatyczny pływakowy - NIE POMOGŁO, zdjąłem go, nie słyszałem żadnego uchodzenia powietrza z nim Dolałem rok temu inhibitor korozji na wszelki wypadek - NIE POMOGŁO ale za to rotamery są teraz żółte i już nie pokazują prawidłowo przepływu 😉 Na wybranych kaloryferach (które mają tendencję do stuków) zamontowałem kątowy odpowietrznik pływakowy - NIE POMOGŁO, zdjąłem Na wszystkich kaloryferach (poza ręcznikowcem) wymieniłem ręczne odpowietrzniki na odpowietrzniki higroskopijne - NIE POMOGŁO ale zostawiłem (co mi szkodzi) Zdjąłem głowicę z ręcznikowca tak, że grzeje gdy cokolwiek w domu żąda ciepła CO by ręcznie sprawdzać czy jest powietrze w układzie - od dwóch tygodni robię to rano i wieczorem i szczególnie po nocy mam w tym ręcznikowcu ok 5- 8 sekund uchodzenia powietrza gdy odkręce odpowietrznik ręcznyy - TO NIE WYDAJE MI SIĘ MOŻLIWE ŻEBY PRZEZ DWA TYGODNIE NIE POZBYĆ SIĘ CAŁEGO POWIETRZA Zastanawiam się skąd bierze się nadal powietrze w układzie. Co ja spieprzyłem i jak mogę to naprawić. Zastanawiałem się nad zainstalowaniem sprzęgła przed mieszaczem podłogówki na parterze bo może gdy pracuje tamta pompa a kocioł nie podaje ciepłej wody to zasysało powietrze przez odpowietrznik pompy w kotle lub separator za kotłem (a sporo przed pompą) ale zrobiłem test wyłączając ogrzewanie parteru (pompę) i zakręcając dopływ i odpływ wody z tego mieszacza - rano nadal w ręcznikowcu było powietrze Zakręciłem zawór odpowietrzania pompy w kotle oraz separator pod kotłem - po jednej z takich nocy w ręcznikowcu miałem powietrza na 25 sekund po odkręceniu zaworu odpowietrzającego (!!!) - czyli to niekoniecznie kwestia podłogówki i jej pompy czy braku sprzęgła Czy ktokolwiek jest w stanie cokolwiek mi doradzić? Czy pompa w mieszaczu może powodować zasysanie gdzieś powietrza? Dlaczego wyłączenie jej w takim razie nic nie poprawia? Czy ze względu na to, że głowice w kaloryferach potrafią się otworzyć i zamknąć w ciągu 3 sekund (od 0 do 100% i odwrotnie) może następować kawitacja np przez zawory higroskopijne? Wydawało mi się, że te akurat są dość na to odporne w przeciwieństwie do pływakowych? Czy macie JAKIEKOLWIEK pomysły co mogę jeszcze sprawdzić, lub co powinienem zrobić? Które odpowietrzniki w jakim zostawić stanie (które odkręcone, które zakręcone), gdzie co jeszcze mozna zrobić? Ja już nie mam pomysłów. Po prawie 2 latach szlag mnie trafia rano czy wieczorem gdy obok łóżka w sypialni zaczyna mi to cholerstwo bulgotać (nawet jeśli dość cicho). Nie daję już rady. Nie dość, że mam szum w kaloryferach to mam jeszcze bulgotanie, sporadycznie stukanie od pompy podłogówki i powietrze. Brakuje mi jeszcze tylko chyba zalania domu do pełnego pakietu nieszczęść. Myślałem o wymianie odpowietrzników higroskopijnych na ręczne oraz o sprzęgle przy mieszaczu podłogówki ale nie chcę znów dolewać wody do układu jeśli to jest do uniknięcia ani wydawać znów pieniędzy na coś co znowu nie zadziała. Potrzebuję rozsądnej porady bo nie dość, że wydałem już na to stanowczo za dużo to nic co miałoby sens nie daje poprawy. PS. Dorzucam też ostatnie 36 godzin z wykresem grzania (które pomieszczenie o ile grzania prosi) + informacja ile powietrza było w danym momencie zebranego w grzejnikowcu (na teraz ma zdjętą głowicę by zawsze dochodziła do niego woda). Chciałem znaleźć prawidłowość czy któryś grzejnik powoduje zapowietrzanie ale nie ma takowej wg mnie. Gdy były odkręcone odpowietrzniki w kotle i separator pod kotłem (od kilku dni są zakręcone) to ilości powietrza były podobne aczkolwiek nigdy nie trafiło się aż 26 sekund powietrza jak dzisiaj - max to było 10-12 sek). W pzrypadku wykresu łazienki chodzi o to ile prosi głowica grzejnikowca o grzanie (podłogówka tam grzeje zawsze gdy jest ciepła woda w układzie) ale to akurat bez znaczenia bo ona jest aktualnie zdjęta. Jeśli chodzi o wykres parteru to to jest poziom grzania żądany na kotle . Każdy poziom grzania większy od zera oznacza włączenie pompy podłogówki na parterze. Pompa jest bezstopniowa - albo chodzi albo nie (nie chodzi tylko gdy brak żądania jakiegokolwiek grzania na dole)
