Skocz do zawartości

dugi192

Forumowicz
  • Postów

    8
  • Dołączył

  • Ostatnia wizyta

Osiągnięcia dugi192

Żółtodziób

Żółtodziób (2/14)

  • Pierwszy post
  • Tydzień pierwszy zaliczony
  • Miesiąc później
  • Od roku na pokładzie
  • Starter dyskusji

Najnowsze odznaki

0

Reputacja

  1. Inna możliwość to zainstalowanie go na powrocie :) - mam rację? Ale jeszcze nie wiem na czym polega różnica, może nie do końca rozumiem zasadę działania zaworu 3d :angry: Macie może jeszcze jakieś sugestie? Pozdrawiam
  2. Witam Spróbuję odświeżyć temat Troszkę pozmieniałem w schemacie i wygląda on teraz tak: Co myślicie o zastosowaniu dwóch zaworów mieszających - jeden dla podniesienia temperatury wody powracającej do pieca a drugi dla obniżenia temperatury w instalacji ogrzewania podłogowego. Ma to sens? Proszę o opinie Pozdrawiam
  3. A czy do takiego kotła istnieje możliwość założenia miarkownika ciągu? Jeżeli tak to jaki polecacie? Dziękuję za odpowiedzi Pozdrawiam
  4. Witam Czy zna ktoś sterownik TECH ST 81 z PID? Co sądzicie na jego temat? W instrukcji jest napisane że m funkcję kontroli spalin i dlatego się nim interesuję? Proszę o opinie. Pozdrawiam
  5. Czy to masz na myśli? W dalszym ciągu nie wiem czy takie przekroje rur będą odpowiednie :) I jeszcze jedno pytanko: czy poza sezonem, jak będę chciał podgrzewać tylko bojler to wystrczy zamknąć zawór 4d (czy on zmyka się całkowicie?) cy potrzebne są jeszcze jakieś dodatkowe zawory? Jeszcze raz dziękuję za odpowiedzi i czekam na kolejne sugestie :)
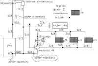
  6. Dzięki za odpowiedzi Grawitacyjnie chcę aby ogrzewało tylko bojler (grzanie wody poza sezonem) W przypadku zaniku prądu chcę zastosować zasilanie awaryjne UPS z przebiegiem sinusoidalnym na wyjściu - tak żeby popmka działała :) Poprawiłem schemat podłączenia zbiornika wyrównawczego i teraz wygląda to tak? Czy jeszcze gdzieś popełniam błąd? A co powiecie o przekrojach rur? Czy takie stopniowanie jest poprawne? Pozdrawiam
  7. Witam Upatrzyłem sobie piec jak w temacie. Co sądzicie na jego temat? Ktoś ma już jakieś doświadczenia z tym urządzeniem? Chciałbym palić przede wszystkim drewnem, trochę trocinami i przy większych mrozach węglem. Czy sterownik TECH st 81 z pid dobrze by się sprawdzał współpracując z tym piecem? Myślę o takim sterowniku ponieważ chciałbym kontrolować temperaturę spalin Proszę o opinie i porady Z góry dziękuję i pozdrawiam
  8. Witam Czy instalacja pokazana na poniższym schemacie będzie działała prawidłowo? Interesują mnie takie kwestie: Czy bojler będzie się nagrzewał przy obiegu grawitacyjnym? Czy dobrze dobrałem średnice rur? Czy za zaworem 4d i pompą instalację do rozdzielaczy można zrobić z rur zgrzewalnych PP (nie stabilizowanych) i zalać je w posadzce (oczywiście w otulinach)? Czy na powrocie z grzejników instaluje się jakieś filtry itp. urządzenia? Z góry dziękuję za odpowiedzi i porady. Pozdrawiam
×
×
  • Dodaj nową pozycję...

Powiadomienie o plikach cookie

Używając tej strony zgadzasz się na Polityka prywatności.