Skocz do zawartości

wojrys

Nowy Forumowicz
  • Postów

    1
  • Dołączył

  • Ostatnia wizyta

Osiągnięcia wojrys

Nowicjusz

Nowicjusz (1/14)

  • Pierwszy post
  • Tydzień pierwszy zaliczony
  • Miesiąc później
  • Od roku na pokładzie
  • Starter dyskusji

Najnowsze odznaki

0

Reputacja

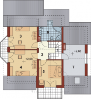
  1. Witam czytalem forum. Mam ten sam problem co inni szum, nierównomierne grzanie. Prosze o pomoc ewentualnie wzory jak to obliczyć. Posiadam kocioł kondensacyjny junkers cerapursmart ZSB 22-3 c. Grzejniki:Buderus Logatrend VK Profil 22 (dwupłytowe dwa rzędy taśm konwekcyjnyc: Podaję powierzchnie pomieszczeń: Projekt domu APS 161. Kotłownia 8,0195 m, grzejnik Logatrend VK Profil 21/600/700 dwupłytowy z jednym rzędem taśm konwekcyjnych Garaż 22,007 m, grzejnik Logatrend VK Profil 22/600/1000 Kuchnia 9,796 m, grzejnik Logatrend VK Profil 22/600/900 Salon 27,9 m, grzejniki: Logatrend VK Profil 22/600/1400 , Logatrend VK Profil 22/900/700 Pokój mały 10,784 m grzejnik Logatrend VK Profil 22/600/900 łazienka mała 3,078 drabinka wiatrołap 5,26 grzejnik Logatrend VK Profil 22/600/400 hol 12,26 grzejnik Logatrend VK Profil 22/600/600 Pralnia 11,011 grzejnik Logatrend VK Profil 22/500/700 Pokój nad garażem 17,25 grzejnik Logatrend VK Profil 22/600/1200 Pokój balkonowy 12.02 grzejniki: 2 szt Logatrend VK Profil 22/600/500 sypialnia 1 17,775 grzejnik Logatrend VK Profil 22/600/1200 sypialnia 2 17,775 grzejnik Logatrend VK Profil 22/600/1200 Łazienka góra 10,752 grzejnik Logatrend VK Profil 22/500/800 + drabinka klatka schodowa góra 12,74 grzejnik Logatrend VK Profil 22/900/500
×
×
  • Dodaj nową pozycję...

Powiadomienie o plikach cookie

Używając tej strony zgadzasz się na Polityka prywatności.