Skocz do zawartości

MarekM

Forumowicz
  • Postów

    11
  • Dołączył

  • Ostatnia wizyta

Osiągnięcia MarekM

Żółtodziób

Żółtodziób (2/14)

  • Pierwszy post
  • Współtwórca
  • Tydzień pierwszy zaliczony
  • Miesiąc później
  • Od roku na pokładzie

Najnowsze odznaki

0

Reputacja

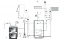
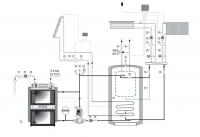
  1. Witam szanownych kolegów z forum, jeszcze raz zamieszczam pytanie o podłączenie zbiornika akumulacyjnego do Laddomatu (nie chcę popełnić błędu).Mam pytanie do załączonego schematu (są to schematy ze strony Atmosa http://www.atmos.cz/poland/instalace-kotlu...poruce-zapojeni ). Czy zbiornik akumulacyjny podłącza się do instalacji przez trójniki (tak to wygląda na schemacie) czy "przelotowo" - z jednej wchodzi do zbiornika z drugiej wychodzi???(mój zbiornik ma osiem dużych 5/4" przyłączy i chyba trzy 1/2" - jest bez wężownic). Pozdrawiam i z góry dziękuje za odpowiedz. Marek
  2. Mam pytanie do tego schematu: Czy zbiornik akumulacyjny jest podłączony do instalacji przez trójniki (tak to wygląda na schemacie) czy "przelotowo" - z jednej wchodzi do zbiornika z drugiej wychodzi???(mój zbiornik ma osiem dużych 5/4" przyłączy i chyba trzy 1/2").
  3. W/g programu firmy Reflex wychodzi że naczynie przeponowe powinno mieć pojemność 140 litrów!!! Czy to możliwe??? (w programie przy podawaniu pojemności instalacji c.o dodałem też 1000 l akumulatora - nie wiem czy dobrze czy nie że to dodałem).
  4. Przeanalizowałem te schematy i wydaje mi się że najbliższy mojej kotłowni jest schemat nr. 9 (załącznik) ponieważ będę montować Laddomat - ze schematu wyrzucam solar i podłogówkę bo tego nie mam. Mam pare pytań do tego schematu: 1. Czy muszę oprócz zaworu bezpieczeństwa 1,5 bar zamontować zamknięte naczynie wzbiorcze (jeżeli tak to jakiej wielkości na piec Atmos DC 32S) 2. Co to są za elementy instalacji nr. 13,12 i 10 na tym schemacie - czy tam mam zamontować zawór bezpieczństwa? 3. Co zrobić z dwoma rurami (dość duży przekrój - idą do pomieszczenia obok kotłowni) do istniejącego zbiornika wzbiorczego - uciąć i zaspawać? 4. Czy układ CWU (pierwszy schemat) pozostawić tak jak jest? 5. I ostanie :) odnośnie ocieplenia akumulatora - kolega "automatyk" napisał żeby użyć wełne samopprzylepną termafix ale nie mogę tej wełny w necie znaleźć - może ktoś wi gdzie to można kupić (jakiś adres internetowy) lub podobry produkt??
  5. Mam spirale do chłodzenia zamontowaną i podłączoną do instalacji wodociągowej (zawór termiczny otwiera go powyżej chyba 95 stopni C) - zastanawiam się właśnie czy nie zamknąć układu C.O montując dodatkowo zawór bezpieczeństwa 1,5 bar (wkurza mnie ten duży zbiornik wzbiorczy - jest w innym pomieszczeniu piwnicy i wydaje mi się że nie daje takiego ciśnienia w instalacji jak powinien. Co do układów na stronie producenta to nie widziałem tam schematu takiego jak u mnie z wymiennikiem płytowym - wolałbym go nie demontować - dość dużo pracy przy tym a przecież działa ok.
  6. Posiadam Laddomat 21 (leży czwarty rok w piwnicy) i chce go użyć do ładowania akumulatora.
  7. Witam, sporządziłem mały schemat istniejącej instalacji (załącznik): 1. Gdzie najlepiej wpiąć ten akumulator? 2. Co zrobić z bojlerem (czy go inaczej podłączyć czy zostawić jak jest)? 3. Czy do ocieplenia można użyć tej maty: http://www.rockwool.pl/sw60711.asp - ma temperaturę pracy tylko 50 stopni.... 4. Czy zbiornik zabezpieczający nie "robi" też ciśnienia w instalacji C.O? Wczoraj sprawdziłem mój jest na wysokości ok 1.8 metra, a zbiornik akumulacyjny ma ok 2.1 metra - czy woda stojąca wyżej w akumulatorze nie wypchnie tej ze zbiornika (czy nie będzie się zapowietrzał cały układ)??? Czy mój zbiornik musi być tak duży - gdzieś czytałem że wystarczy ok 20l - w Atmosie DC 32S jest ok 80l wody?
  8. Witam, mam parę pytań do kolegów z forum odnośnie podłączenia jak w temacie. Zakupiłem zbiornik AKU 1000l (bez wężownic) i chciałbym go jakoś wpiąć do mojej instalacji: mam Atmosa DC32 podłączonego poprzez wymiennik płytowy (układ grzejnikowy zamknięty), naczynie zabezpieczające układ otwarty powieszone na wysokości ok. 1,9 m o pojemności ok 120 l. W układ otwarty wpięty zasobnik CWU 200l z dwoma wężownicami (wykorzystana tylko jedna). Mam cztery pytania: 1. Czy mogę podpiąć naczynie zabezpieczające które mam na strychu (ok. 20-30 l - pozostało po starej instalacji przed podłączeniem wymiennika płytowego a zrezygnować z dużego "baniaka" 120 l - zajmuje troche miejsca i chyba jest za nisko (robi za małe ciśnienie - zbiornik aku. ma 2m. wysokości). 2. Jak podpiąć sensownie zbiornik AKU do instalacji (nie wymontowując wymiennika). 3. Jak wpiąć zasobnik CWU żeby korzystał ze zgromadzonego ciepła w akumulatorze. 4. Czy do ocieplenia tego akumulatora można użyć 20 cm. wełny mineralnej i czy to dobry pomysł..... Posiadam Laddomat 21 (nie podłączony do instalacji). Pozdrawiam i z góry dziękuje za pomoc. Marek
  9. To była wina pompy - brak uszczelki oringowej na śrubie z przodu. Dzięki :)
  10. Właśnie kupiłem w Internecie nową pompę (ta na obiegu cwu faktycznie dziwnie nieraz burczy jakby się zacierała), we wtorek wymienię i zobaczę czy będę miał ciepłą wodę wreszcie... Z odpowietrzeniem układu przy wyłączonej pompie może być problem bo jedyny odpowietrznik całego układu znajduje się właśnie na obiegu cwu.
  11. Witam, mam problem z zapowietrzaniem się instalacji CO/CWU. "Fachman" przerobił mi instalację CO/CWU z otwartej na mieszaną - układ grzejnikowy zamknięty połączony z układem otwartym CO/CWU (piec ATMOS) wymiennikiem płytowym. Wyciął rury do zbiornika wyrównawczego na strychu i założył nowy baniak wyrównawczy (chyba 120 l) w piwnicy na dość niskiej wysokości ok. 1.80m. No i od ponad roku mam problemy z grzaniem ciepłej wody - układ CWU (udzielna pompa) notorycznie się zapowietrza, układ CO działa ale chyba też jest zapowietrzony (odgłosy przelewania i bomblowania, bardzo ciężko odpowietrzyć to wszystko). Nie wiem czy podniesienie tego zbiornika na ok. 2.00m coś da (piwnica ma ok 2.20- musiałbym zamówić spawany zbiornik w formie sześcianu a nie "bojlera") czy można wykorzystać zbiornik który pozostał na strychu (ok 20 - 30l). Do zbiornika 120 l idą dwie grube rury od pieca (plus jedna spustowa na zewnątrz budynku), a do starego zbiornika tylko dwie chyba calowe (przelewowa rura i spustowa chyba). W jaki najprostszy sposób poprawić tę instalację?? Z góry dziękuje za podpowiedź.
×
×
  • Dodaj nową pozycję...

Powiadomienie o plikach cookie

Używając tej strony zgadzasz się na Polityka prywatności.